Design Services for Ara Petroleum Industrial Facility for Oil & Gas
Project Description
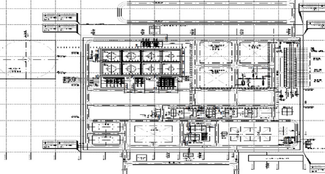
The project includes the pre-tender services for the Engineering & Process Design of an oil & gas Industrial facility in North of Oman.
On a total area of 18,000 m2; the project comprises a control building (area of 1,600 m2), electrical substations (area of 1,600 m2), and a chemical storage (area of 400 m2).
The remaining area is dedicated for crude oil processing. The main components are manifold areas, 3-phase separators, water injection packages, crude oil (On-Spec and Off-Spec tanks), electrical generators working on associated gases, transfer pumps, and flare package.
The manifold connects 24 wellheads; the gathering stations has a capacity of 12,000 BOPD; water processing has a capacity of 40,000 BWPD; and associated gases has a capacity of 50m3/hr with overall policy of implementing zero gas flaring philosophy in design and operation.
- Client
Al Hamra Kuwait CO. W.L.L
- Location
- Sector
- Project Status
Completed
- Share This Project




















